正壓型防爆配電柜特點與功能
正壓型防爆配電柜簡稱為防爆正壓柜,是我公司根據市場需求研發的一款新型防爆產品。產品可根據不用的客戶需求選擇不同的防爆區域。廣泛用于化工、煉油、石油開采、海洋石油平臺、油輪、軍工等危險場所。
1、外殼采用鋼板焊接或鑄鋁合金或者304不銹鋼壓鑄成型,表面高壓靜電噴塑,一般采用隔爆型外殼和增安型外殼組合成的復合型結構。
2、隔爆型外殼內裝元件可裝防爆按鈕、防爆元件、防爆信號燈、防爆轉換開關及防爆儀表等防爆元件和交流接觸器、熱繼電器、溫控器及各種功能模塊等普通電器元件;增安型外殼內裝按鈕、控制開關、儀表等均為防爆元件。
3、內部元件根據用戶的要求進行排列,可實現多種功能。內裝元件及信號燈顏色請用戶在選型時予以注明,該產品根據用戶要求變化多端,訂貨時須提供電氣線路圖;布線方式,鋼管或電纜、防爆軟管均可。
4、功能說明
PX:
1.產品設置換氣連鎖,產品投運前,只有經過主盤內腔換氣,并達到規定的時間和換氣量后, 確保主盤內部吹除了易燃易爆氣體, 副盤才能受電,并開始檢測主腔氣壓,確保產品投運時, 電器元件已被潔凈介質有效隔離。
2.只有主盤內腔氣壓滿足規定的氣壓要求時, 副盤內電源自動切換系統才會向主腔送電。
3.主盤內腔工作氣壓為100Pa P 800Pa; 當氣壓高千800Pa時,自控系統自動關閉進氣或開啟排氣閥,自動調整內部氣壓,保證產品不受高氣壓沖擊而變形損壞。當氣壓低千100Pa時,自控系統自動報警(聲光),并開啟進氣,自動調整內部補氣,補氣成功時,自動恢復正常,不成功且內部氣壓降到60Pa時,必要時可設置系統自動斷電。
4.副盤自控系列為不間斷連續監控,并顯示主盤內腔各壓力參數。
5.正壓通風型為不間斷連續供風,正壓腔內電器元件的工作熱量可隨時帶走,具有良好的散熱功能。內部可裝檢測儀表、分析儀表、顯示儀表、低壓電器、變頻器、軟起動器、計算機等,整臺產品可作為設備起動、控制、中央信號處理及控制系統。
6.正壓補償型為間斷型供氣,正壓腔具有良好的保壓密封性能。
7.同型號產品可多臺并聯運行。
8.用戶提供氣源時,須配備潔凈或惰性氣體氣源,一般情況下 , 用戶現場的儀表氣源可滿足要求。氣源壓力為0.2-0.8MPa或0.2-0.5 MPa(根據主腔容積大小確定)。
9.產品適用電源系統為交流三相四線制380/220系統及所有弱電系統,不適用千高壓系統。
pz:
為專用千2區而設計的— 種正壓防爆柜,pz系列px系列相比省略了檢查換氣時間的安全間隙,僅標志換氣的時間,由用戶在主腔通電前按要求進行;另外,當內部氣壓低千100Pa時,自控系統自動報警(聲光)并開啟進氣,自動調整內部補氣,補氣成功時,自動恢復正常 , 不成功且內部氣壓降到60Pa時, 系統不自動斷電,繼續報警。
5、產品特點
1.本產品可根據用戶要求安裝各種普通的檢測儀表、分析儀表、顯示儀表、監視器、微電腦觸摸屏、大功率變頻器以及普通電器元件,對用戶內裝電器元件基本不受限制
2.采用介質隔離點燃源防爆措施達到電器防爆的目的是正壓型通風防爆配電柜的防爆原理。即:把用戶所有的電器元件裝在一個充滿正壓力潔凈介質的殼體內,使外部環境中易燃的混合性氣體物質無法接觸到電器元件在正常工作時所產生的電火花或危險溫度,從而達到電器防爆目的。
3.產品采用主、副盤結構,主盤為正壓腔,內裝用戶所需的電器元件和防爆必須的檢壓傳感系統,通風布氣系統、氣壓調節系統等,副盤內裝防爆換氣自控系統,防爆電源自切換系統,防爆報警系統,防爆壓力顯示系統,進出氣源連接口,自供氣規格產品的副盤內還裝有防爆供氣裝置
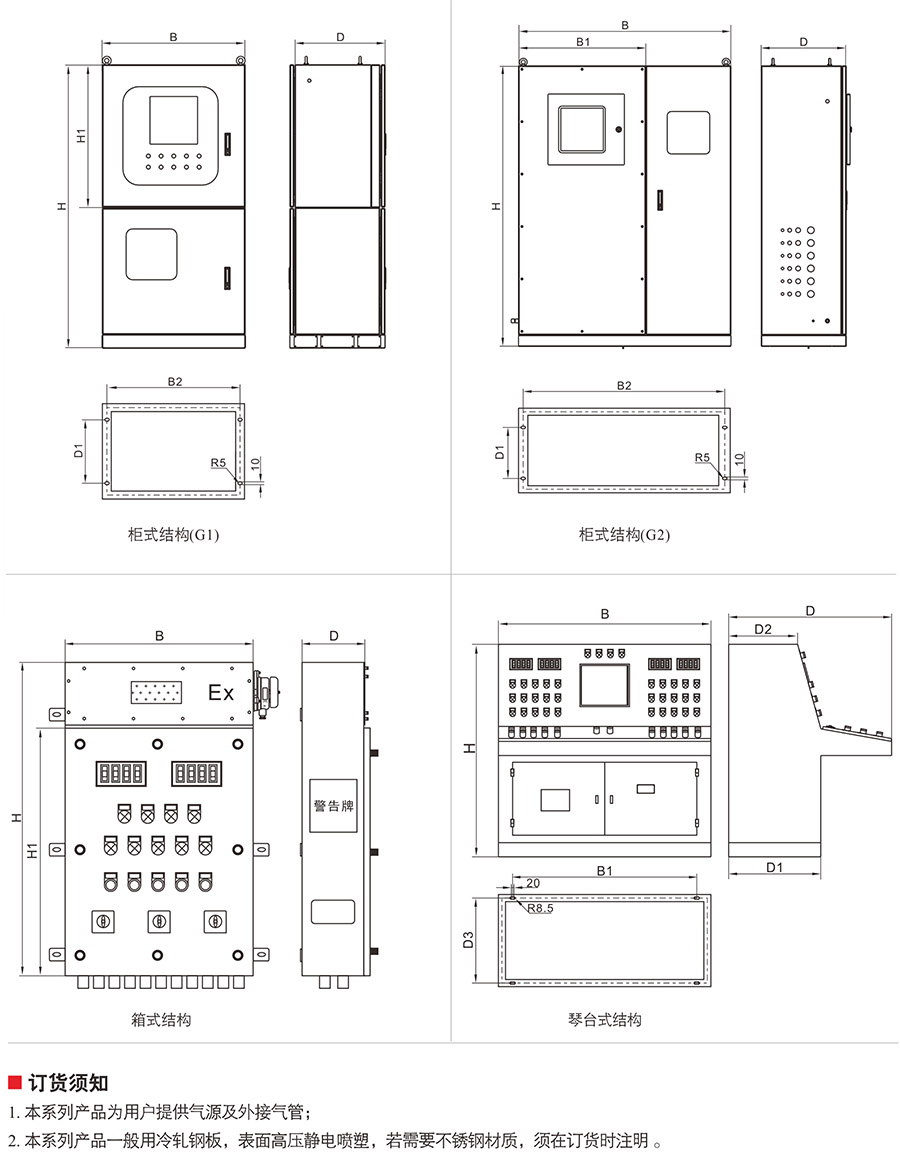
4.可按用戶要求分別定制成箱式、琴臺式和柜式結構,柜式又分為上下結構和左右結構。箱式一般采用鋼板焊接而成,表面高壓靜電噴塑,或不銹鋼焊接成型,前開門操作,后開門維修,琴臺式和柜式其柜架采用標準材焊接,表面高壓靜電噴塑,對其各接合面都經過了特殊的密封處理,前開門操作后開門維修,鋼板材料一般用冷軋鋼板,也可根據用戶要求選用不銹鋼材質。
6、技術參數

7、安裝尺寸


- 下一篇
- 防爆電器如何選擇?
產品質保3年
售后24小時到達現場
咨詢熱線 HOTLINE



